Raketenmodellbau.org Portal > Forum > Experimental & Forschung > Motorprüfstände > Prüfstand für den Microhybrid
Du kannst keine neue Antwort schreiben
Seiten (4): « 1 [2] 3 4 »

Autor Thema 
Oliver Arend

Administrator


Administrator

Oliver Arend

Registriert seit: Aug 2000

Wohnort: Great Falls, VA, USA

Verein: RMV/Solaris/AGM/TRA L1/TCV/MDRA/NOVAAR

Beiträge: 8390

Status: Offline

Beitrag 72631 [Alter Beitrag08. April 2005 um 00:18]

[Melden] Profil von Oliver Arend anzeigen    Oliver Arend eine private Nachricht schicken   Oliver Arend besitzt keine Homepage    Mehr Beiträge von Oliver Arend finden

Siggi hat mal für seine Motoren einen einfachen Schubmessstand auf Federbasis mit fortlaufender Papierrolle als Kurvenaufzeichnung gebaut. Sowas sollte bei entsprechender Dimensionierung doch auch für Euch reichen, oder? Bei ihm wars waagerecht, IIRC, aber das Konzept lässt sich ja in beliebigen Richtungen umsetzen.

Oliver
FabianH

Grand Master of Rocketry


Supervisor

FabianH

Registriert seit: Okt 2003

Wohnort: Gevelsberg

Verein: Ramog, Solaris-RMB, FAR

Beiträge: 4123

Status: Offline

Beitrag 72634 [Alter Beitrag08. April 2005 um 00:27]

[Melden] Profil von FabianH anzeigen    FabianH eine private Nachricht schicken   Besuche FabianH's Homepage    Mehr Beiträge von FabianH finden

Dann könnte man auch an die Papierolle einen Motor machen der über einen Schalter anfängt sich zu drehen, der Schalter wird durch den ersten Schub des Motors betätigt. und bei der kurzen Brennzeit ann man dir Rolle auch recht schnell laufen lassen so dass man sehr genaue Daten davon ablesen kann!


MfG Fabian
RalfB

Grand Master of Rocketry


Moderator

RalfB

Registriert seit: Apr 2004

Wohnort:

Verein: AGM, Tripoli L2

Beiträge: 2979

Status: Offline

Beitrag 72649 [Alter Beitrag08. April 2005 um 09:27]

[Melden] Profil von RalfB anzeigen    RalfB eine private Nachricht schicken   Besuche RalfB's Homepage    Mehr Beiträge von RalfB finden

Hi Robert,

ich werde am Wochenende mal versuchen eine Digicam zu leihen. Dann reiche ich mal ein Foto nach.

Die Konstruktion ist für den Aufwand wirklich nicht schlecht. Man müßte nur noch ein wehnig mit verschiedenen Federn testen um den Messweg zu vergrößern.

Eine Küchenwaage nit vertikaler Skaler (Zeiger) dürfte für einen Schub von 1 bis 3 kg aber noch besser sein. Ich habe gestern mal eine alte Küchenwaage von Mutti instand gesetzt.
Die macht bei 3 kg einen Weg von 360 Grad. Wenn man nun die Halterung für den MH senkrecht oben drauf montiert, so dass der Abgasstrahl neben der Waage her pfeifen kann, hat man bestimmt eine brauchbare Genauigkeit und einen riesigen Anzeigebereich.
Mann muss nur sicherstellen, das man die Sache größer vorbeschweht als sich Schub entwickeln kann sonst hebt die Geschicht ab.

Ich werde berichten wie es klappt.

#Don’t Look Up
Oliver Arend

Administrator


Administrator

Oliver Arend

Registriert seit: Aug 2000

Wohnort: Great Falls, VA, USA

Verein: RMV/Solaris/AGM/TRA L1/TCV/MDRA/NOVAAR

Beiträge: 8390

Status: Offline

Beitrag 72660 [Alter Beitrag08. April 2005 um 13:06]

[Melden] Profil von Oliver Arend anzeigen    Oliver Arend eine private Nachricht schicken   Oliver Arend besitzt keine Homepage    Mehr Beiträge von Oliver Arend finden

Du misst dann aber vor allem ein Drehmoment und keine Kraft, da solltest Du evtl. eine entsprechende Vorrichtung bauen, die an einem Hebel, wo außen der MH schiebt, die Kraft direkt über der Waage abgreift. So kann man auch den Messbereich verändern.

Oliver
FabianH

Grand Master of Rocketry


Supervisor

FabianH

Registriert seit: Okt 2003

Wohnort: Gevelsberg

Verein: Ramog, Solaris-RMB, FAR

Beiträge: 4123

Status: Offline

Beitrag 72670 [Alter Beitrag08. April 2005 um 14:26]

[Melden] Profil von FabianH anzeigen    FabianH eine private Nachricht schicken   Besuche FabianH's Homepage    Mehr Beiträge von FabianH finden

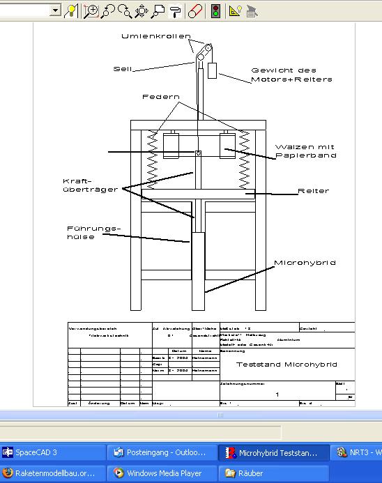
Ich habe mal etwas geCADet:

MfG Fabian

Folgende Datei wurde angehängt:

FabianH

Grand Master of Rocketry


Supervisor

FabianH

Registriert seit: Okt 2003

Wohnort: Gevelsberg

Verein: Ramog, Solaris-RMB, FAR

Beiträge: 4123

Status: Offline

Beitrag 72671 [Alter Beitrag08. April 2005 um 14:35]

[Melden] Profil von FabianH anzeigen    FabianH eine private Nachricht schicken   Besuche FabianH's Homepage    Mehr Beiträge von FabianH finden

Zur Funktionsweise:
Der Microhybrid gleitet in einer Fürhrunghülse, der Kraftüberträger gibt den Schub an den Reiter weiter, dieser gleitet auch sehr leicht in Schienen. Durch den nächsten Kraftüberträger, der am Ende einen Bleistift hat, wird eine Kurve auf das laufende Papierband gezeichnet.

MfG Fabian
FabianH

Grand Master of Rocketry


Supervisor

FabianH

Registriert seit: Okt 2003

Wohnort: Gevelsberg

Verein: Ramog, Solaris-RMB, FAR

Beiträge: 4123

Status: Offline

Beitrag 72688 [Alter Beitrag08. April 2005 um 16:50]

[Melden] Profil von FabianH anzeigen    FabianH eine private Nachricht schicken   Besuche FabianH's Homepage    Mehr Beiträge von FabianH finden

Ich habe mal überlegt.........Das Gewicht des Microhybrids und in meinem Fall auch das des Reiters wirkt sich ja auch auf die Schubkurve aus deshalb habe ich nochmal etwas verändert:

MfG Fabian

Folgende Datei wurde angehängt:

Oliver Arend

Administrator


Administrator

Oliver Arend

Registriert seit: Aug 2000

Wohnort: Great Falls, VA, USA

Verein: RMV/Solaris/AGM/TRA L1/TCV/MDRA/NOVAAR

Beiträge: 8390

Status: Offline

Beitrag 72696 [Alter Beitrag08. April 2005 um 17:18]

[Melden] Profil von Oliver Arend anzeigen    Oliver Arend eine private Nachricht schicken   Oliver Arend besitzt keine Homepage    Mehr Beiträge von Oliver Arend finden

Masse von Reiter und Motor sind aber konstant, ist also nur ne Frage der Einstellung. Deine Zusatzgewicht-mit-Umlenkrolle-Konstruktion ist überflüssig, würde ich sagen. Und die abnehmende Treibstoffmasse kannst Du sowieso nicht ausgleichen, die is mit einer Gewichtskraft von 0,2 N oder so aber auch vernachlässigbar.

Oliver
FabianH

Grand Master of Rocketry


Supervisor

FabianH

Registriert seit: Okt 2003

Wohnort: Gevelsberg

Verein: Ramog, Solaris-RMB, FAR

Beiträge: 4123

Status: Offline

Beitrag 72700 [Alter Beitrag08. April 2005 um 17:50]

[Melden] Profil von FabianH anzeigen    FabianH eine private Nachricht schicken   Besuche FabianH's Homepage    Mehr Beiträge von FabianH finden

Ja, aber das gewicht des Reiters muss ich beim eingeben der Werte in z.B. Spacecad wieder abziehen, mit dieser Umlenkanlage habe ich nur den wirklichen Schub!

MfG Fabian
Oliver Arend

Administrator


Administrator

Oliver Arend

Registriert seit: Aug 2000

Wohnort: Great Falls, VA, USA

Verein: RMV/Solaris/AGM/TRA L1/TCV/MDRA/NOVAAR

Beiträge: 8390

Status: Offline

Beitrag 72712 [Alter Beitrag08. April 2005 um 18:34]

[Melden] Profil von Oliver Arend anzeigen    Oliver Arend eine private Nachricht schicken   Oliver Arend besitzt keine Homepage    Mehr Beiträge von Oliver Arend finden

Nein, Du verlegst von Anfang an die Nulllinie auf Deiner Papierskala...

Oliver
Seiten (4): « 1 [2] 3 4 »
[Zurück zum Anfang]
Du kannst keine neue Antwort schreiben